Warm, honest Italian meal kits made with fresh ingredients.
Kitaly brings simple, authentic flavors and cozy moments to your table.
Warm, honest Italian meal kits
made with fresh ingredients. Kitaly brings simple, authentic flavors
and cozy moments to your table.
Warm, honest Italian meal
kits made with fresh
ingredients. Kitaly brings
simple, authentic flavors and
cozy moments to your table.
Warm, honest Italian meal kits made with
fresh ingredients. Kitaly brings simple,
authentic flavors and cozy moments to your table.
Warm, honest Italian meal kits made with
fresh ingredients. Kitaly brings simple,
authentic flavors and cozy moments to your table.
Warm, honest Italian meal kits
made with fresh ingredients.
Kitaly brings simple, authentic
flavors and cozy moments to your table.
Kitaly
Client: kitaly
date: 2022
Creative Director: tido, jq
brand designer: didi, dawn, dave, lumi, ciara
spatial designer: ciara
summary
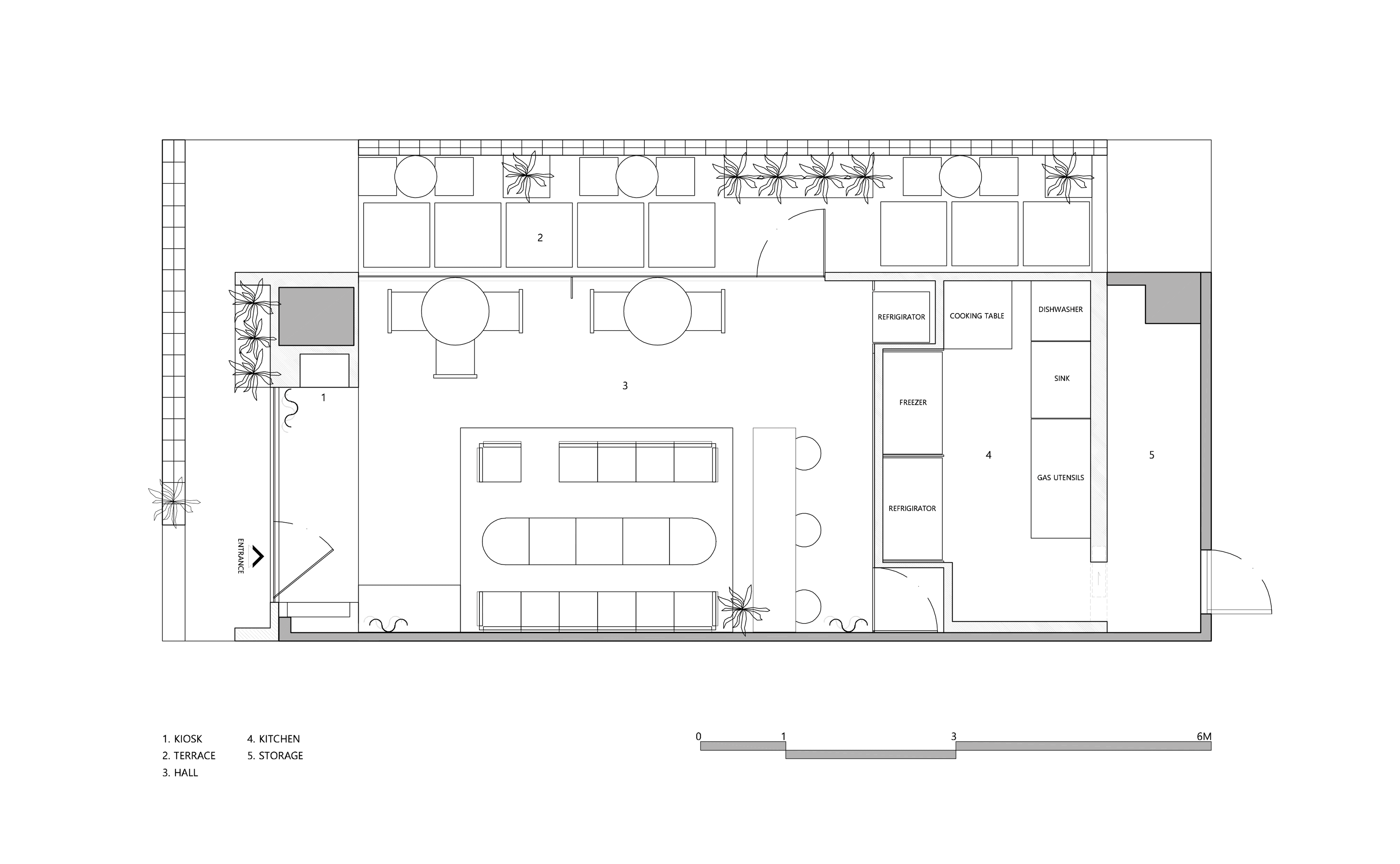
kitaly is a meal kit brand that delivers honest and hearty Italian cuisine made with visible, generous ingredients. Its name cleverly combines “kit” and “Italy” to express its concept clearly. The brand identity uses hand-stamped visuals and a warm color palette inspired by real ingredients. The physical store is designed as a cozy “house of ingredients,” symbolizing honesty and comfort. With its unique concept and tactile design, kitaly sets itself apart from typical meal kit brands.
kitaly는 눈에 보이고 넉넉한 재료로 정직한 이탈리안 요리를 제공하는 밀키트 브랜드입니다. ‘kit’과 ‘Italy’를 결합한 이름으로 브랜드의 콘셉트를 직관적으로 전달합니다. 브랜드 아이덴티티는 재료를 손으로 찍은 그래픽과 식재료에서 영감을 받은 따뜻한 색상으로 구성되었습니다. 매장은 ‘재료의 집’이라는 콘셉트로 정직함과 편안함을 상징하는 공간으로 디자인되었습니다. 촉각적인 디자인과 명확한 콘셉트를 통해 일반적인 밀키트 브랜드와 차별화됩니다.
more info






















Kitaly
Client: kitaly
date: 2022
Creative Director: tido, jq
brand designer: didi, dawn, dave, lumi, ciara
spatial designer: ciara
summary
kitaly is a meal kit brand that delivers honest and hearty Italian cuisine made with visible, generous ingredients. Its name cleverly combines “kit” and “Italy” to express its concept clearly. The brand identity uses hand-stamped visuals and a warm color palette inspired by real ingredients. The physical store is designed as a cozy “house of ingredients,” symbolizing honesty and comfort. With its unique concept and tactile design, kitaly sets itself apart from typical meal kit brands.
kitaly는 눈에 보이고 넉넉한 재료로 정직한 이탈리안 요리를 제공하는 밀키트 브랜드입니다. ‘kit’과 ‘Italy’를 결합한 이름으로 브랜드의 콘셉트를 직관적으로 전달합니다. 브랜드 아이덴티티는 재료를 손으로 찍은 그래픽과 식재료에서 영감을 받은 따뜻한 색상으로 구성되었습니다. 매장은 ‘재료의 집’이라는 콘셉트로 정직함과 편안함을 상징하는 공간으로 디자인되었습니다. 촉각적인 디자인과 명확한 콘셉트를 통해 일반적인 밀키트 브랜드와 차별화됩니다.
more info






















Kitaly
Client: kitaly
date: 2022
Creative Director: tido, jq
brand designer: didi, dawn, dave, lumi, ciara
spatial designer: ciara
summary
kitaly is a meal kit brand that delivers honest and hearty Italian cuisine made with visible, generous ingredients. Its name cleverly combines “kit” and “Italy” to express its concept clearly. The brand identity uses hand-stamped visuals and a warm color palette inspired by real ingredients. The physical store is designed as a cozy “house of ingredients,” symbolizing honesty and comfort. With its unique concept and tactile design, kitaly sets itself apart from typical meal kit brands.
kitaly는 눈에 보이고 넉넉한 재료로 정직한 이탈리안 요리를 제공하는 밀키트 브랜드입니다. ‘kit’과 ‘Italy’를 결합한 이름으로 브랜드의 콘셉트를 직관적으로 전달합니다. 브랜드 아이덴티티는 재료를 손으로 찍은 그래픽과 식재료에서 영감을 받은 따뜻한 색상으로 구성되었습니다. 매장은 ‘재료의 집’이라는 콘셉트로 정직함과 편안함을 상징하는 공간으로 디자인되었습니다. 촉각적인 디자인과 명확한 콘셉트를 통해 일반적인 밀키트 브랜드와 차별화됩니다.
more info






















Great ideas deserve a great team.
Let’s talk hohoho@hohohogroup.com
Great ideas deserve a great team.
Let’s talk hohoho@hohohogroup.com
Great ideas deserve a great team.
Let’s talk hohoho@hohohogroup.com
Great ideas deserve a great team.
Let’s talk hohoho@hohohogroup.com
Great ideas deserve a great team.
Let’s talk hohoho@hohohogroup.com
Great ideas deserve a great team.
Let’s talk hohoho@hohohogroup.com
Greate ideas deserve a great team.
Let’s talk hohoho@hohohogroup.com
Great ideas deserve a great team.
Let’s talk hohoho@hohohogroup.com